Flooring, Tile and Stone Shop Drawings
Flooring, Tile and Stone Shop Drawings
It would be fun to have interiors that showcase YOU, wouldn’t it?
Well, nothing is stopping you!
With McLine Studios’ shop drawing services experts by your side, you have the power to create interiors that define your personal style. Our experts offer stone shop drawing services, flooring shop drawings, and tile shop drawing services for all residential and commercial projects.
We produce tile and stone shop drawings for manufacturers and installers in accordance with industry standards. Staffed with over 100 experienced detailers and draftsmen, we at McLine, strive to provide exceptional tile and stone shop drawing services for your real estate projects. Come, let’s discuss your next project over a steaming cup of coffee!
The stone, terrazzo, and tiling industries place a high value on shop drawings. The drawings depict how the contractor interpreted the construction document in light of the contract’s stated scope of work. Quality shop drawings are used by project managers for material ordering, take-offs, fabrication, and installation. They detail and document all requirements of design parameters.
Shop drawings will have all the information required for architectural permission, prepared in AutoCAD to describe your interpretation of the CD set. The architectural plans and your directions will create the specifics.
Our aim is to develop a long term relation with each and every client we get, and this is why we ensure that our client is fully satisfied with the quality of the Tile and Stone Shop Drawings we provide them. Before commencing a project, we make sure that we very well understood the project and what our clients need from us. We proceed only once when every single query is cleared. This helps us to deliver exactly what our client expects from us. We also make sure that we update our clients on every stage of the project, so that our clients do not have to run after us.
Work samples




Tile and Stone shop drawing services
Tile Layout Shop Drawings
We excel in tailored Tile Layout Shop Drawings, offering precision, innovation, and expertise. Our tile shop drawings are meticulously crafted to reflect accurate dimensions, patterns, and installation details—ensuring flawless execution on-site. Whether for residential or commercial projects, our drawings help streamline workflows and minimize installation errors.
Stone Shop Drawings
We craft perfection in Stone Shop Drawings. Enhance your project with our precision, innovation, and expert guidance. Our detailed stone floor drawings ensure accurate layout, seamless integration, and high-quality finishes, helping you achieve both aesthetic and structural excellence in every installation.
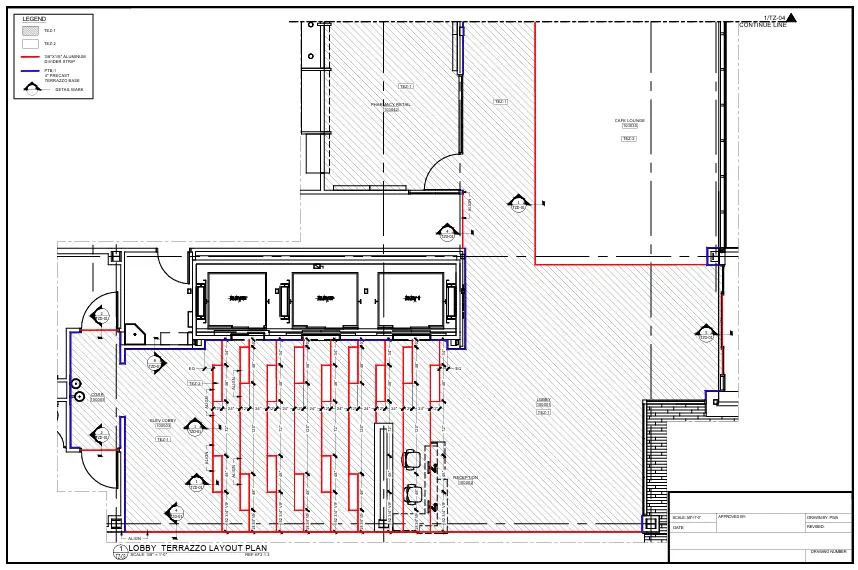
Terrazzo Layout Shop Drawings
Offers precise, customized Terrazzo Layout Shop Drawings, ensuring timely delivery, cost-efficiency, and collaboration with design professionals. Our drawings capture intricate patterns, joints, divider strips, and color transitions with accuracy—supporting smooth installation and design intent. We align with project specifications to reduce rework and enhance visual consistency across every terrazzo floor.
Bathroom Remodelers
Transform your space with our expert bathroom remodelers. We specialize in tailored designs, premium materials, and efficient renovations that elevate both style and functionality. Our precise bathroom tile layout drawings provide clear guidance for installers, ensuring accurate alignment, seamless patterns, and reduced material waste. From modern to classic styles, we help bring your vision to life with professional planning and execution at every step.
We cater to various Tile and stone Shop Drawings sectors
We cater to various tile and stone shop drawings sectors, delivering precise and project-specific documentation for residential, commercial, and hospitality projects. Our expertise spans floor layouts, wall elevations, and intricate pattern detailing. No matter the scale or complexity, we ensure accuracy, efficiency, and alignment with design intent across all sectors.
Corporate
Retails Outlets
Restaurants & hotels
Healthcare facilities
Government
Educational
Residential
Public libraries
Our Process
Getting to know you
Our team tries to understand the project in as much detail as you can provide in the kick-off meeting with CTB files, full set of architectural drawings, materials, finishes, the scope of work sheet, and your AutoCAD template.
Getting to work
After the call and internal resource allocation, our rendering experts get down to business. They import the plans and begin working on your shop drawing designs.
Getting ready for review
Once the first draft is ready, it undergoes an internal quality check. We then submit these floor tile layout drawings and the corresponding tile setting drawing for you to review, ensuring accuracy and alignment with your project requirements.
Getting feedback and final approvals
Once you share your thoughts, our
experts update the flooring shop drawings and
resubmit them for final approval.
Shop Drawing and Interior Drafting Services - Frequently Asked Questions
We have observed that folks often have questions when they approach McLine Studios for stone shop drawings, CAD drafting, flooring shop drawings, tile and stone shop drawing, and tile shop drawings services — and this is why we have included some of the most commonly asked questions and their answers below. If you have any other questions or want more information about our services, feel free to shoot an email or give us a ring. We’re also happy to assist with detailed tile layout drawing needs.
In addition to our expertise in tile and stone detailing, we also assist clients with accurate and well-organized shop floor drawing solutions. Whether you’re working on a small residential remodel or a large commercial project, our team ensures every detail is captured with precision and clarity.
If you’ve been searching for shop drawing services near me, look no further. McLine Studios is committed to delivering professional, reliable, and timely drafting support tailored to your specific needs—no matter your location.
What are shop drawings?
Shop drawings are schematics that illustrate production standards, measurements, and fabrication specifications for prefabricated elements. They also play a key role in maintaining consistency and accuracy, especially when following an established SOP in tile layout, ensuring that every tile is placed with precision according to design intent.
Why do I need tile shop drawings?
Not just for the tiling industry, but shop drawings are very important for the stone industry as well. They show the scope of work in the contract with reference to the contractor’s interpretation of the construction documents. Project managers use shop drawings and documents for ordering materials, take-offs, manufacturing, and installation. A detailed tiling layout plan further supports accurate execution by clearly outlining tile placement, patterns, and alignment on-site.
What information must be included in shop drawings?
Shop drawings should include the following information:
- Information for engineers and architects to compare specifications and drawings
- Notes regarding alterations or differences from the original documents along with approvals from architects and engineers
- Manufacturing conventions, dimensions and production instructions for the intended products or components
- Dimensions that need verification from the jobsite
- Sample submittals for choosing the texture, color and finishes, if required
- Data, symbols or instructions for assembly and installation
What software do you use to create shop drawings?
We use AutoCAD and Revit for our shop drawings. All shop drawings designed by McLine Studio experts follow the international standards of AWI, AWS, AWMAC, NKBA and NAAWS.
How much do shop drawings cost me?
The prices for our tile and stone shop drawing services vary from project to project. We’d be able to give you a ballpark figure only after assessing the scope of your project, including the level of detail required in the tiling drawing and any custom specifications involved.
I want some changes/corrections done to my drawings. Can you help?
Of course! Just let us know what needs to change and our experts will get right to it.

