Shop Drawing Services
Shop Drawings
Looking for the best shop drawing and drafting services experts for your next project?
We got your back!
At McLine Studios, our experts have a ton of experience in creating high-quality shop drawings for both commercial and residential projects. All you need to do is entrust us with your existing drawings and ideas and we will integrate everything with the big picture. All our shop drawing sets comply with the industry standards.
Precision and accuracy define every project we deliver. Our experienced team reviews your project scope in detail, then produces accurate shop drawings in AutoCAD, fully compliant with industry standards. We serve home builders, engineers, real estate developers, and contractors across the USA, ensuring faster approvals and flawless execution.
WorK Samples







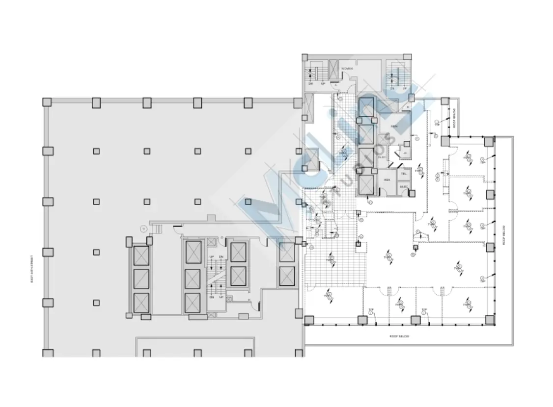
During the pre-construction phase, shop drawings provide critical construction and fabrication details that ensure project accuracy. These drawings outline key structural elements such as precise dimensions, assembly methods, shapes, materials, and installation techniques.
As a primary reference tool for contractors, shop drawings are essential for translating design intent into reality. The information they contain helps architects, engineers, and builders identify the most efficient and code-compliant construction methods. By reviewing and approving these drawings, design professionals ensure that suppliers, manufacturers, and contractors share a clear, unified understanding of the project’s specifications—minimizing errors, delays, and costly rework.
McLine Studios offers a team of professionals who provide error-free shop drawings and CAD drafting services. A collection of drawings known as a “shop drawing” is created for a maker, fabricator, manufacturer, or contractor. We offer shop drawing services for a variety of projects, including new projects, renovations, and other forms of government, corporate, and commercial contracts. Using the most recent software and technology, we create your shop drawing project quickly.
Benefits Of Shop Drawing Outsourcing
- Shop Drawings provide the details of the materials with contractors and vendors works.
- Shop Drawings Services help to create an accurate building structure.
- The detailed Shop Drawing can provide every assembly with the fabrication process.
- The contractor or manufacturer can easily understand the details and information from the Shop Drawings.
- Shop Drawing is also important along with the Steel Detailing Services for the construction of a building.
- It is highly effective and useful for the manufacturing and construction companies.
Talk to our experts for more details. You can mail us on info@mclinestudios.com for inquiry or any further information.
Shop Drawing and Drafting Services
Complete Shop Drawings
High-quality shop drawings and drafting services for architectural, structural, carpet and permit shop drawings.
Bespoke, high-quality and accurate millwork detail drawings for fabrication, assembly and installation.
Facade Shop Drawings
Detailed mechanical, electrical, plumbing, piping, and HVAC duct shop drawings to facilitate construction and installation.
Precise stone and tile shop drawings with material, finish and texture details along with accurate dimensions and layout instructions.
Steel Shop Drawings
Complete set of steel shop drawings for prefabricated components like trusses, reinforced concrete and pre-caste concrete.
Accurate permit drawings as per zonal and governmental regulations for obtaining approvals from local authorities.
We cater to various Shop Drawings Sectors
Corporate
Retails Outlets
Restaurants & hotels
Healthcare facilities
Government
Educational
Residential
Public libraries
Our Process
Getting to know you
Our team tries to understand the project in as much detail as you can provide in the kick-off meeting with CTB files, full set of architectural drawings, materials, finishes, the scope of work sheet, and your AutoCAD template.
Getting to work
After the call and internal resource allocation, our drafting services experts get down to business. They import the plans and begin drafting the shop drawings.
Getting ready for review
Once the first draft is ready, it undergoes an internal quality check. We then submit these drawings for you to review.
Getting feedback and final approvals
Once you share your thoughts, our experts update the shop drawings and resubmits for final approvals.
Shop Drawing and Drafting Services - Frequently Asked Questions
We have observed that folks often have questions when they approach McLine Studios for drafting services and this is why we have included some of the most commonly asked questions and their answers below. If you have any other questions or want more information about our services, feel free to shoot an email or give us a ring.
What does shop drawing mean?
A shop drawing is a drawing or a set of drawings that convey the design intent. They are also known as fabrication drawings and offer specifications necessary to manufacture, fabricate, assemble and install all components of a structure.
What are the basic categories of shop drawings?
There are many different types of shop drawings. Some of the most common ones are:
- MEP shop drawings
- HVAC shop drawings
- Steel detailing drawings
- Fabrication drawings
- Rebar detailing drawings
- Building components shop drawings
- Mechanical shop drawings
- Metal shop drawings
- Tile and stone shop drawings
What information must be included in shop drawings?
Shop drawings should include the following information:
- Information for engineers and architects to compare specifications and drawings
- Notes regarding alterations or differences from the original documents along with approvals from architects and engineers
- Manufacturing conventions, dimensions and production instructions for the intended products or components
- Dimensions that need verification from the jobsite
- Sample submittals for choosing the texture, color and finishes, if required
- Data, symbols or instructions for assembly and installation
What software do you use to create shop drawings?
We use AutoCAD and Revit for our shop drawings and drafting services. All shop drawings designed by McLine Studio experts follow the international standards of AWI, AWS, AWMAC, NKBA and NAAWS.
How much do shop drawings cost me?
The prices for our drafting services vary from project to project. We’d be able to give you a ballpark figure only after assessing the scope of your project.
How much time will you take to create my shop drawings?
We offer industry-standard turnaround times. However, we would be able to give you the right timeline after understanding your expectations and the scope of the project.

